9:00 — 20:00 +7 812 629-66-68
Слайдер СК Прометей — Строительная компания Слайдер СК Прометей — Строительная компания Слайдер СК Прометей — Строительная компания Слайдер СК Прометей — Строительная компания
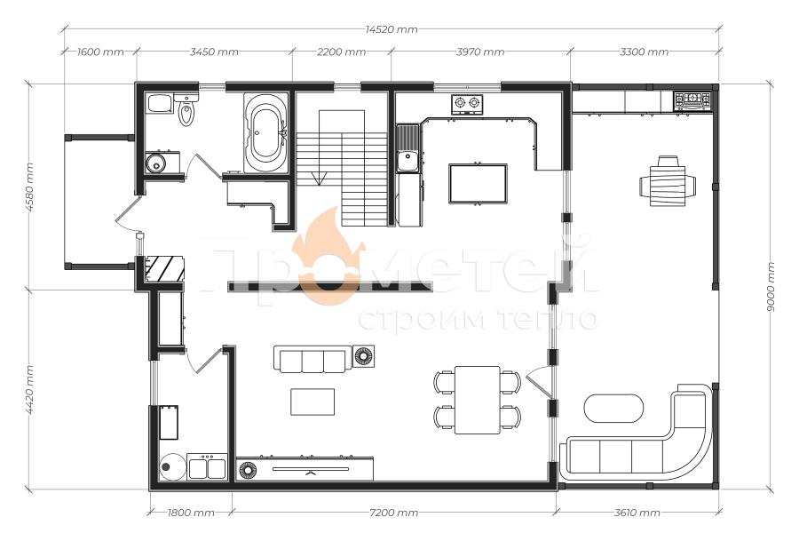
Каркасный дом 13x9 | 207м², 1,5 этажный Каркасный дом 13x9 | 207м², 1,5 этажный

Ракурсы и планировки

Каркасный дом 13x9 | 207м², 1,5 этажный под ключ

Проект: "КД-173" 14,52х9 м, двухэтажного каркасного дома 14,52 на 9 метров, выполненный из доски камерной сушки. По проекту 6 комнат: Кухня; Гостиная; Три Спальни; Два Санузла; Просторная терраса. Возможна свободная планировка. Дом поставляется в полной строительной готовности. Доставка до 100 км от КАД бесплатно

  • Габариты 9,6x9 м
  • Количество этажей 2
  • Общая площадь 173 м²
  • Жилая площадь 141 м²
  • Площадь 1-го этажа 74
  • Площадь 2-го этажа 67
  • Площадь террасы 33 м²
  • Спальня 3
  • Санузел 2
  • Срок возведения 3

В стоимость комплектации входит деревянный каркас дома из доски камерной сушки под кровлей из металлочерепицы Монтерей 0,45мм. Доставка материалов до 100 км от КАД. Бытовка для проживания бригады на участке.

Подробнее о тарифе

В стоимость комплектации входит деревянный каркас дома под кровлей. Наружная отделка без покраски. Подготовка помещений к чистовой отделке. Доставка материалов до 100 км от КАД. Бытовка для проживания бригады на участке.

Подробнее о тарифе

В стоимость комплектации входит деревянный каркас дома под кровлей. Наружная отделка без покраски. Внутренняя чистовая отделка. Доставка материалов до 100 км от КАД. Бытовка для проживания бригады на участке.

Подробнее о тарифе

В стоимость комплектации входит деревянный каркас дома под кровлей. Наружная отделка без покраски. Внутренняя чистовая отделка. Прокладка электрических и сантехнических коммуникаций в доме. Доставка материалов до 100 км от КАД. Бытовка для проживания бригады на участке.

Подробнее о тарифе
2660000

Таблица сравнения тарифов

Закрытый контур
2660000
Теплый контур
5540000
С отделкой
7490000
С коммуникациями
Цена по запросу
Сборка дома
Проект дома АР + КД
Доставка до 100 км от КАД
Технический надзор
Основание дома
Обвязка основания
Брус сечением 150x150 мм (антисептированный)
Половые лаги
Сухая доска 40x200 мм (антисептированные)
Силовой каркас наружних стен
Вертикальные стойки
Cухая доска 40х150 мм, шаг 590 мм
Ригель по периметру
Cухая доска 40х150 мм
Укосины
Cухая доска 40х100 мм
Обвязочный верхний пояс
Cухая доска 40х150 мм
Силовой каркас внутренних перегородок
Вертикальные стойки
Cухая доска 40х100 мм, шаг 590 мм
Укосины
Cухая доска 40х100 мм
Обвязочный верхний пояс
Cухая доска 40х100 мм
Ригель несущих перегородок
Cухая доска 40х100 мм
Высота потолков
1-й этаж 2.70м, 2-й этаж 2.50м. (черновая)
Пол 1-го и 2-го этажа
Половые Лаги
Cухая доска 40х200 мм, шаг 590 мм (Антисептированная)
Стропильная система
Стропила
Cухая доска 40х200 мм, шаг 590 мм
Мауэрлат
Cухая доска 40х200 мм
Свесы 600мм
Cухая строганная доска 20х95мм
Наружная отделка
Имитация бруса
Карельский профиль 20х146 мм
Ветро-гидро защитная мембрана
Isobox, проклейка швов скотчем
Контробрешетка
Вентиляционный зазор –  сухая рейка 25х50 мм
Свесы, наличники, углы
Cухая строганная доска
Настил террас
Террасная доска 27 мм вельвет, хвоя
Устройство ограждений
Cухая строганная доска
Покраска фасада
Renowood в два слоя
Кровля
Настил кровли
Металлочерепица, сталь 0,5 мм
Обрешетка
Сухая доска 25x100 мм, шаг 300 мм
Контробрешетка
Вентиляционный зазор – строганный брусок 45x45 мм
Подкровельная мембрана
Isobox, проклейка швов скотчем
Водосточная система
пластиковая Docke Premium
Система снегозадержания
Утепление
Наружные стены
150 мм плитный базальтовый утеплитель Технониколь Роклайт
Пол 1-го этажа
200 мм плитный базальтовый утеплитель Технониколь Роклайт
Пол 2-го этажа
200 мм плитный базальтовый утеплитель Технониколь Роклайт
Перегородки
100 мм плитный базальтовый утеплитель Технониколь Роклайт
Кровля
200 мм плитный базальтовый утеплитель Технониколь Роклайт
Внутренняя отделка
Имитация бруса 16x140 мм. "Штиль"
Профиль Штиль 14х140 мм Хвоя
Обрешетка
Сухой брусок сечением 25x50 мм – вентиляционный зазор
Пароизоляция
Isobox для стен, полов, скатов. проеклейка швов скотчем
Изоляция перегородок
Isobox, проклейка швов скотчем
Настил полов
Настил пола
Плиты Quick Deck 16 мм шип паз
Обрешетка
Сухая доска 25х100 мм, шаг 200 мм
Пароизоляция
Isobox, проклейка швов скотчем
Черновой пол
Обрезная доска 20x100 мм с шагом 100 мм
Окна
ПВХ Rehau, 70 мм, белые
Двухкамерный стеклопакет, поворотнооткидные с отливами
Подоконники, откосы
Строганная доска
Двери
Входная дверь
Металлическая утепленная с Терморазрывом "Гарда"
Межкомнатные двери
Экошпон с доборами и наличниками с двух сторон
Лестница
Ступени, стартовые столбы, перилла, балясины
Антисептирование
Обвязка, лаги пола, черновой пол
Коммуникации
Отопление
Монтаж коллектора радиаторного отопления , разводка труб радиаторного отопления (труба из сшитого полиэтилена), монтаж отопительных радиаторов, Электрический котел.
Водосети
Монтаж коллекторов ХВС и ГВС , разводка труб из полипропилена, установка водорозеток . Опрессовка и испытание системы давлением. Водонагреватель 100 л. Разводка труб канализации.
Электросети
Установка электрического щита монтажа наполнение щита автоматическими выключателями. Прокладка кабелей к точкам потребления (кабель ВВГнгLS в гофре). Установка и монтаж розеток, выключателей и датчиков температуры.
Вентиляция
Прокладка вент. каналов, монтаж кровельных вентвыходов Vilpe, монтаж приточных клапанов КИВ

Частые вопросы про каркасные дома

Что такое каркасный дом и какие преимущества он имеет перед другими типами домов?

Каркасный дом – это дом с деревянным каркасом, который снаружи обшит листовыми материалами: древесиной, цементными плитами, сайдингом. Каркасное домостроение является одним из самых перспективных направлений в современном строительстве.

Основные преимущества каркасного дома:

  • Низкая стоимость строительства и эксплуатации по сравнению с другими типами зданий.
  • Быстрота и простота возведения.
  • Хорошая теплоизоляция и звукоизоляция.
  • Экологичность и энергоэффективность.
  • Возможность легкой перепланировки и модернизации.
  • Долговечность и надежность конструкции.

Как долго прослужит каркасный дом при правильном уходе?

Каркасный дом будет служить долго при правильном уходе, если соблюдать следующие рекомендации:

  • Регулярно проверять состояние каркаса и обшивки дома.
  • Обрабатывать древесину антисептиками и антипиренами для защиты от гниения и возгорания.
  • Следить за состоянием утеплителя, своевременно заменять его на новый.
  • Очищать дом от грязи и пыли, чтобы предотвратить образование плесени и грибков.
  • Использовать качественные материалы для отделки дома, чтобы повысить его энергоэффективность.

Как выбрать правильный размер каркасного дома для моих нужд?

Для выбора правильного размера каркасного дома необходимо учитывать следующие факторы:

  • Количество проживающих в доме людей.
  • Необходимый метраж комнат и других помещений.
  • Требования к площади кухни, санузла и других функциональных зон.
  • Площадь и расположение участка, на котором будет располагаться дом.
  • Наличие возможности подключения к коммуникациям (электричество, газ, вода, канализация).
  • Бюджет на строительство дома.

Каковы требования к фундаменту для каркасного дома и как их соблюсти?

Для каркасного дома обычно подходит ленточный или монолитный фундамент или свайно-винтовой. Фундамент должен быть ниже глубины промерзания и иметь хорошую гидроизоляцию, чтобы защитить дом от влаги. Также важно предусмотреть дренажную систему, чтобы отвести воду от фундамента.

Частые вопросы про каркасные дома

Мы на выставке Эксподом в Кудрово

Мы рады пригласить Вас на выставку ЭКСПОДОМ Участок №19. Мы специализируемся на строительстве каркасных бань, модульных домов, а также теплых и качественных домов, по каркасной технологии. Помимо этого, мы предлагаем бани бочки, которые прекрасно впишутся в ландшафт на вашем участке.

На выставке, вы сможете прикоснуться к материалам и технологиям, увидеть их настоящее качество, и задать все интересующие Вас вопросы нашим специалистам. Вы также можете заказать готовый дом или баню, которые уже представлены на выставке. Наши специалисты помогут создать проект по Вашим пожеланиям.

До скорой встречи на выставке ЭКСПОДОМ!

Открыть в Яндекс.Картах
Заказать звонок
Консультацию по проекту
Консультация по проектам
Спасибо за отправленную заявку Ваша заявка принята, мы свяжемся с Вами ближайшее время и проконсультируем по всем вопросам.
Произошла ошибка Извините за неудобство, отправьте заявку еще раз. Спасибо.
Записаться на выставку
Все обсуждают планировку и внешний вид проекта, но выбирать строительную компанию необходимо в первую очередь по качеству используемых материалов

Будем рады рассказать о всех тонкостях выбора материалов и дальнейшего обслуживания для долговечности вашей каркасной штуки
1
Приходите к нам на выставку "Эксподом" в Кудрово ПН-ВС в рабочее время без выходных
2 Или оставьте ваш номер телефона, и мы проконсультируем вас по всем вопросам
Перезвоните мне
3 Или напишите нам в соц. сетях :)

Успейте сделать заказ перед сезонным повышением цен

Telegram WhatsApp +7 812 629-66-68