9:00 — 20:00 +7 812 629-66-68
Слайдер СК Прометей — Строительная компания Слайдер СК Прометей — Строительная компания Слайдер СК Прометей — Строительная компания Слайдер СК Прометей — Строительная компания
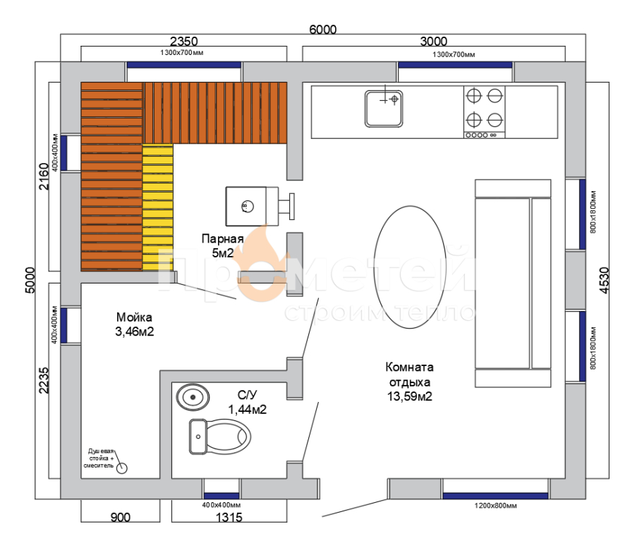
Каркасная баня 6x5 метров Б-30 Каркасная баня 6x5 метров Б-30 Каркасная баня 6x5 метров Б-30

Ракурсы и планировки

Комплектация

Материалы

Доска 40*150 мм сухая, камерной сушки (наружные стены, пол, кровля). Доска 40*100мм сухая, камерной сушки (внутренние перегородки ); Ветро-влагозащитная пленка ISOBOX A/Пароизоляционная пленка ISOBOX B / Пароизоляционная отражающая пленка ISOBOX ТЕРМО; Проклейка пленок и мембран скотчем TIF.

Утеплитель

Плиты из каменной ваты ТЕХНОНИКОЛЬ Роклайт 150 мм (наружные стены, полы, кровля) / 100 мм (Внутренняя перегородка); Техноплекс 100 мм (полы в мокрых помещениях).

Кровля

Двухскатная кровля. Покрытие: Металлочерепица Монтерей 0,45мм; Обрешетка доска 25*100мм сухая, камерной сушки; Контрообрешетка брусок 50*50мм сухой, камерной сушки; Карнизные и ветровые планки.

Окна

ПВХ окно однокамерное BrusBox (60) (800*1800) с наружной покраской RAL, глухое - 2 шт, ПВХ окно однокамерное BrusBox (60) (1300*700) с наружной покраской RAL, глухое - 1 шт, ПВХ окно однокамерное BrusBox (60) (1200*800) с наружной покраской RAL, 1/3 створка открывная-поворотная - 1шт (Комната отдыха); Банное окно из липы (400*400) с однокамерным стеклопакетом (Помывочная); ПВХ окно однокамерное BrusBox (60) (500*500) с наружной покраской RAL, створка открывная-поворотная - 1шт (Санузел) Закаленный однокамерный стеклопакет (1300*700), Банная форточка из липы (400*400) с однокамерным стеклопакетом (Парная).

Полы

Шпунтованная доска 27 мм Хвоя сорта АВ (Комнате отдыха, санузел); Проливные полы из Гладкой Лиственницы 28 мм сорта АВ (Помывочная/парная) (Оцинкованный поддон с жёлобом).

Двери

Пластиковая входная дверь BrusBox 60 (775*1900) c однокамерным стеклопакетом, наружная покраска RAL; Стеклянная банная дверь (700*1900) короб липа, закаленное стекло толщиной 8 мм (Санузел/помывочная/парная).

Отделка

Внутренняя отделка: Вагонка Штиль Хвоя сорт АВ (Комната отдыха/санузел); Вагонка Лиственница сорт АВ (Помывочная); Вагонка Кедр Сибирский сорт АВ (Парная); Наличники, галтели, углы Сосна/Липа; Наружная отделка: Имитация бруса карельский профиль 20х145 мм покрашенная на 2 слоя; Обналичка окон, дверей и углов - строганная доска.

Полок

Г-образный Двухуровневый нарезной полок из полковой доски Кедр Сибирский сорта АВ.

Печь

Стальная Печь УЗПО Фея Скала 16 м3 объемом помещения и закладкой камней до 120 кг; Печное оборудование: Сэндвич труба, дефлектор конуса, опорная заглушка, поворотный шибер, притопочные листы, подставка под печь из нержавеющей стали 304 марки.

Электрика

Скрытая проводка кабелем ВВГ в гофрированной серой трубе; Потолочные светодиодные светильники с защитой Ip 54, выключатель и розетка (Комната отдыха и Помывочная); Настенные светильники НББ 400 с защитой Ip 65 под полком 3 шт (Парная).

Наружное покрытие

Предоставляем два цвета. Первый цвет - фасад. Второй цвет - обналичка окон, дверей, углов. Используемая краска Ranowood Lasur (Лессирующая основа) или Renowood House Paint (Укрывная основа).

Каркасная баня 6x5 метров Б-30 под ключ

Каркасная баня 6*5 метров с четырьмя отделениями (комфортная комната отдыха, санузел, функциональная помывочная и большая парная) выполнена по финской технологии из высококачественных и благородных пород древесины: хвоя, лиственница и кедр сибирский.

Представленную комплектацию можно изменить.

Цена указа без террасы

Комплектацию и планировку можно менять, в соответствии с этим конечная стоимость изделия будет меняться.

  • Габариты 5*6 м
  • Длина 5 м
  • Ширина 6 м
  • Высота 4 м
  • Общая площадь 30 м²
  • Количество отделений 4

В стоимость комплектации входит деревянный каркас дома из доски камерной сушки под кровлей из металлочерепицы Satin 0,45мм. Доставка материалов до 100 км от КАД. Бытовка для проживания бригады на участке.

Подробнее о тарифе

В стоимость комплектации входит деревянный каркас дома под кровлей. Наружная отделка с покраской. Подготовка помещений к чистовой отделке. Доставка материалов до 100 км от КАД. Бытовка для проживания бригады на участке.

Подробнее о тарифе

В стоимость комплектации входит деревянный каркас дома под кровлей. Наружная отделка с покраской. Внутренняя чистовая отделка. Доставка материалов до 100 км от КАД. Бытовка для проживания бригады на участке.

Подробнее о тарифе

В стоимость комплектации входит деревянный каркас бани под кровлей. Наружная отделка с покраской. Внутренняя чистовая отделка. Прокладка электрических и сантехнических коммуникаций в доме. Доставка материалов до 100 км от КАД. Бытовка для проживания бригады на участке.

Подробнее о тарифе
920000

Таблица сравнения тарифов

Закрытый контур
920000
Тёплый контур
1755000
С отделкой
2560000
С коммуникациями
Цена по запросу
Сборка дома
Проект дома АР + КД
Доставка до 100 км от КАД
Технический надзор
Основание Бани
Обвязка основания
Брус сечением 150x150 мм (антисептированный)
Половые лаги
Сухая доска 40x150 мм (антисептированные)
Силовой каркас наружних стен
Вертикальные стойки
Cухая доска 40х150 мм, шаг 590 мм
Ригель по периметру
Cухая доска 40х150 мм
Укосины
Cухая доска 40х150 мм
Обвязочный верхний пояс
Cухая доска 40х150 мм
Силовой каркас внутренних перегородок
Вертикальные стойки
Cухая доска 40х100 мм, шаг 590 мм
Укосины
Cухая доска 40х100 мм
Обвязочный верхний пояс
Cухая доска 40х100 мм
Ригель несущих перегородок
Cухая доска 40х100 мм
Высота потолков
1-й этаж 2.70м, 2-й этаж 2.50м. (черновая)
Пол 1-го этажа
Половые Лаги
Cухая доска 40х200 мм, шаг 590 мм (Антисептированная)
Стропильная система
Стропила
Cухая доска 40х150 мм, шаг 590 мм
Мауэрлат
Cухая доска 40х150 мм
Свесы 500мм
Cухая строганная доска 20х95мм
Наружная отделка
Имитация бруса
Карельский профиль 20х146 мм
Ветро-гидро защитная мембрана
Наноизол Проф, проклейка швов скотчем
Контробрешетка
Вентиляционный зазор –  сухая рейка 25х50 мм
Свесы, наличники, углы
Cухая строганная доска
Настил террас
Террасная доска 27 мм вельвет, хвоя
Устройство ограждений
Cухая строганная доска
Покраска фасада
Renowood в два слоя
Кровля
Настил кровли
Металлочерепица, сталь 0,5 мм
Обрешетка
Сухая доска 25x100 мм, шаг 300 мм
Контробрешетка
Вентиляционный зазор – строганный брусок 45x45 мм
Подкровельная мембрана
Isobox, проклейка швов скотчем
Водосточная система
пластиковая Docke Premium
Система снегозадержания
Утепление
Наружные стены
150 мм плитный базальтовый утеплитель Технониколь Роклайт
Пол 1-го этажа
150 мм плитный базальтовый утеплитель Технониколь Роклайт
Перегородки
100 мм плитный базальтовый утеплитель Технониколь Роклайт
Кровля
150 мм плитный базальтовый утеплитель Технониколь Роклайт
Внутренняя отделка
Имитация бруса 14x145 мм. "Штиль" (сухие помещения)
ЕвроВагонка Осина сорт А 12x90 мм. (Парная, помывочная)
Обрешетка
Сухой брусок сечением 25x50 мм – вентиляционный зазор
Пароизоляция
Isobox термо и Наноизол Проф для стен, полов, скатов. проеклейка швов скотчем
Изоляция перегородок
Наноизол Проф, проклейка швов скотчем
Настил полов
Настил пола сухих помещений
Шпунтованная половая доска 27 мм шип паз
Настил пола парной и помывочной
Палубная гладкая лиственница доска 27 мм (трап). Оцинкованный поддон с желобом
Обрешетка
Сухая доска 25х100 мм, шаг 100 мм
Пароизоляция
Наноизол Проф, проклейка швов скотчем
Черновой пол
Обрезная доска 20x100 мм с шагом 300 мм
Окна
ПВХ BrusBox, 60 мм, белые
Однокамерный стеклопакет, поворотнооткидные с отливами
Подоконники, откосы
Строганная доска
Двери
Входная дверь
Металлическая утепленная с Терморазрывом "Гарда"
Межкомнатные двери
Экошпон с доборами и наличниками с двух сторон
Антисептирование
Обвязка, лаги пола, черновой пол
Коммуникации
Отопление
Монтаж коллектора радиаторного отопления , разводка труб радиаторного отопления (труба из сшитого полиэтилена), монтаж отопительных радиаторов, Электрический котел.
Водосети
Монтаж коллекторов ХВС и ГВС , разводка труб из полипропилена, установка водорозеток . Опрессовка и испытание системы давлением. Водонагреватель 100 л. Разводка труб канализации.
Электросети
Установка электрического щита монтажа наполнение щита автоматическими выключателями. Прокладка кабелей к точкам потребления (кабель ВВГнгLS в гофре). Установка и монтаж розеток, выключателей и датчиков температуры.
Вентиляция
Прокладка вент. каналов, монтаж кровельных вентвыходов Vilpe, монтаж приточных клапанов КИВ

Каркасные бани - наши главные преимущества

Сухие пиломатериалы

В своем производстве используем сухие пиломатериалы камерной сушки 12-16% влажности хвойных пород. Это предотвращает усушку каркаса в процессе эксплуатации. Сухой материал не подвержен к образованию бактерий и грибка, а также к деформации.

Отделка парной

Потолок, стены, полок отделываются материалом кедром сибирским. Волокна древесины лежат так близко тем самым не пропускает влагу во внутрь древесины. Кедр выдерживает перепады температуры и влажности, при этом не трескается, не выгибается. При нагревании в парной выделяются эфирные масла. Так же можем предложить отделку липой, осиной, абашем, канадским кедром.

Отделка помывочной

Стены, потолок отделываются вагонкой штиль Лиственница. Выбор пал на материал лиственница так как она характеризуется высоким содержанием смолистых веществ и поэтому высокой стойкостью к гниению. Её реакция уникальна на воздействие влаги – древесина лиственницы не только не портится, но и приобретает новые качества: прочность, долговечность и неуязвимость к грибкам.

Частые вопросы про каркасные бани

Насколько быстро прогревается каркасная баня?

Время прогрева каркасной бани зависит от ее размеров, теплоизоляции и мощности печи или котла. Обычно время прогрева составляет от 30 минут до 2 часов.

На сколько человек рассчитана каркасная баня?

Каркасные бани обычно рассчитаны на 2-4 человека. Однако, при желании можно увеличить количество мест, добавив дополнительные комнаты или увеличив площадь самой бани.

Из чего состоят стены каркасной бани?

Стены каркасной бани состоят из каркаса, утеплителя и обшивки. Каркас обычно изготавливается из дерева, утеплитель используется для сохранения тепла внутри бани, а обшивка защищает от влаги и обеспечивает дополнительную теплоизоляцию.

Какие преимущества имеет каркасная баня перед другими видами бань?

Каркасная баня имеет ряд преимуществ перед другими видами бань:

  • Быстрый монтаж: каркасная баня собирается за несколько дней, в то время как строительство обычной бани может занять несколько месяцев.
  • Экономия на материалах: каркасная баня строится из легких материалов, что позволяет снизить затраты на строительство и транспортировку.
  • Прочность и долговечность: каркасная конструкция обеспечивает высокую прочность и устойчивость бани к внешним воздействиям.
  • Низкая стоимость: каркасная баня стоит дешевле, чем обычная баня из кирпича или дерева.
  • Простота эксплуатации: каркасная баня легко отапливается и поддерживается в чистоте.

Какие требования к фундаменту необходимо соблюдать при установке каркасной бани на участке?

Да, каркасная баня требует определенных требований к фундаменту.

  • Каркасная баня должна быть установлена на прочном фундаменте, который выдержит вес бани и земли, на которой она будет стоять.
  • Рекомендуется использовать ленточный фундамент или свайный фундамент.
  • При выборе фундамента необходимо учитывать глубину промерзания почвы, тип грунта и уровень грунтовых вод.
  • Также необходимо учитывать размеры и вес самой бани, чтобы выбрать подходящий фундамент.

Как ухаживать за каркасной баней, чтобы она прослужила долго?

Чтобы каркасная баня прослужила долго, необходимо правильно ухаживать за ней. Вот несколько советов:

  • Регулярно проверяйте состояние каркаса, обшивки и кровли.
  • Обрабатывайте древесину антисептиком и антипиренами.
  • Следите за состоянием утеплителя и своевременно заменяйте его.
  • Очищайте баню от грязи и пыли.
  • Используйте качественные материалы для отделки и утепления.
  • Не забывайте о противопожарной безопасности.
Частые вопросы про каркасные бани

Мы на выставке Эксподом в Кудрово

Мы рады пригласить Вас на выставку ЭКСПОДОМ Участок №19. Мы специализируемся на строительстве каркасных бань, модульных домов, а также теплых и качественных домов, по каркасной технологии. Помимо этого, мы предлагаем бани бочки, которые прекрасно впишутся в ландшафт на вашем участке.

На выставке, вы сможете прикоснуться к материалам и технологиям, увидеть их настоящее качество, и задать все интересующие Вас вопросы нашим специалистам. Вы также можете заказать готовый дом или баню, которые уже представлены на выставке. Наши специалисты помогут создать проект по Вашим пожеланиям.

До скорой встречи на выставке ЭКСПОДОМ!

Открыть в Яндекс.Картах
Заказать звонок
Консультацию по проекту
Консультация по проектам
Спасибо за отправленную заявку Ваша заявка принята, мы свяжемся с Вами ближайшее время и проконсультируем по всем вопросам.
Произошла ошибка Извините за неудобство, отправьте заявку еще раз. Спасибо.
Записаться на выставку
Все обсуждают планировку и внешний вид проекта, но выбирать строительную компанию необходимо в первую очередь по качеству используемых материалов

Будем рады рассказать о всех тонкостях выбора материалов и дальнейшего обслуживания для долговечности вашей каркасной штуки
1
Приходите к нам на выставку "Эксподом" в Кудрово ПН-ВС в рабочее время без выходных
2 Или оставьте ваш номер телефона, и мы проконсультируем вас по всем вопросам
Перезвоните мне
3 Или напишите нам в соц. сетях :)

Бесплатный АР и КД проекты для наших клиентов

Telegram WhatsApp +7 812 629-66-68